
Villa Rénovation autour de l’Existant
A l’inverse du contemporain, existe le style provençale. Parmi ce style nous trouvons des Villas remplies de charme, biscornue, dont les imperfections font la beauté.
Voici un projet aux angles particuliers. L’interieur et le Paysagisme sont repensés, tout en laissant l’enveloppe de la maison intact, on fait honneur à son origine.
Localisation
Valbonne
Projet
Rénovation
Date
Février 2024


Villa Création Contemporaine
Une Villa Neuve. Sur le thème de l’alignement. Elle sublime le métier d’architecte d’intérieur, une harmonie provoquée par un dessin linéaire, fonctionnel et esthetique.
Localisation
Nice
Projet
Création
Date
Février 2024



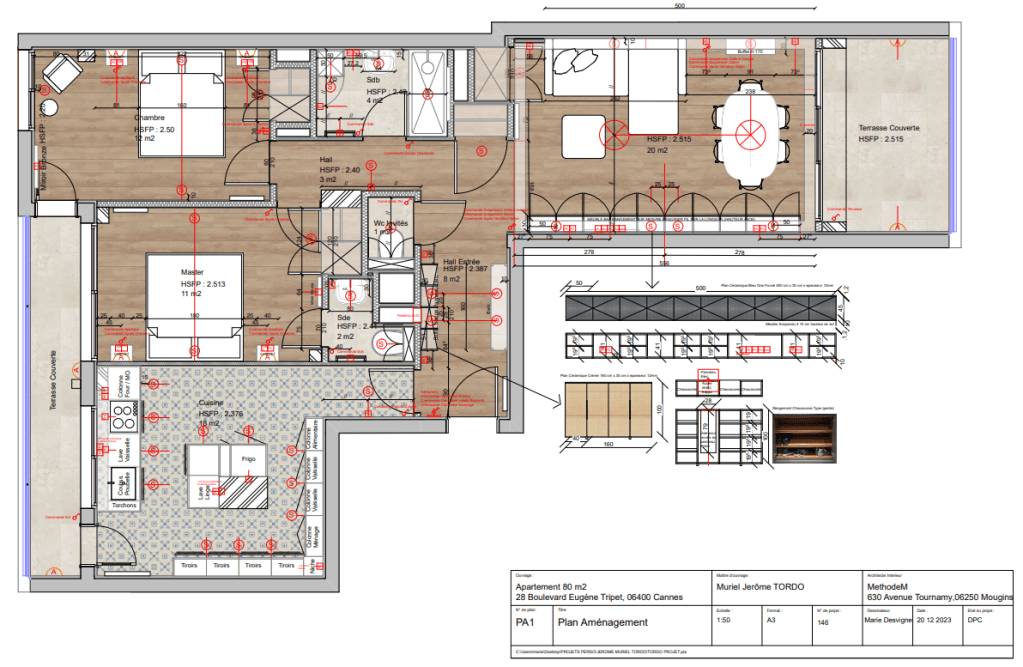
Apartement Rénovation
Un Apartement datant des années 80. Une recherche de l’optimisation et de l’ergonomie dans l’espace. Un projet de réfléxion autour du quotidien du client.
Localisation
Cannes
Projet
Rénovation
Date
Septembre 2024


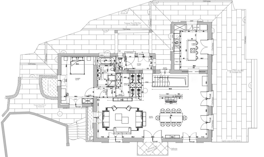
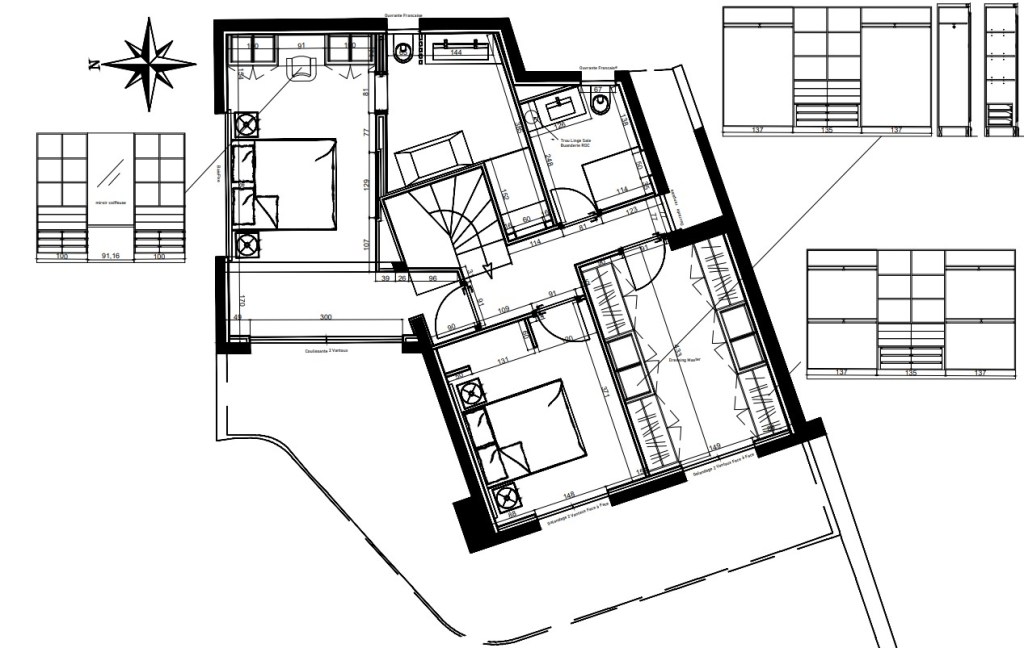
Villa Rénovation
Une Villa Familiale. Des suites indépendantes, le confort, l’éxclusivité. Les espaces sont tous autonomes et complets.
Localisation
Chateauneuf
Projet
Rénovation
Date
Mai 2023


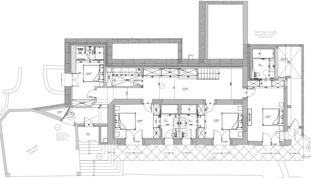
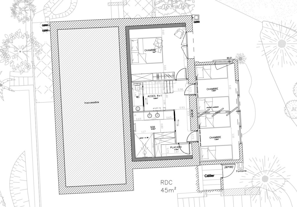
Villa Rénovation
Une Villa de vacances. L’objectif est d’acceuillir, le thème est la convivialité. Les espaces sont partagés et chaleureux.
Localisation
Chateauneuf
Projet
Rénovation
Date
Août 2023


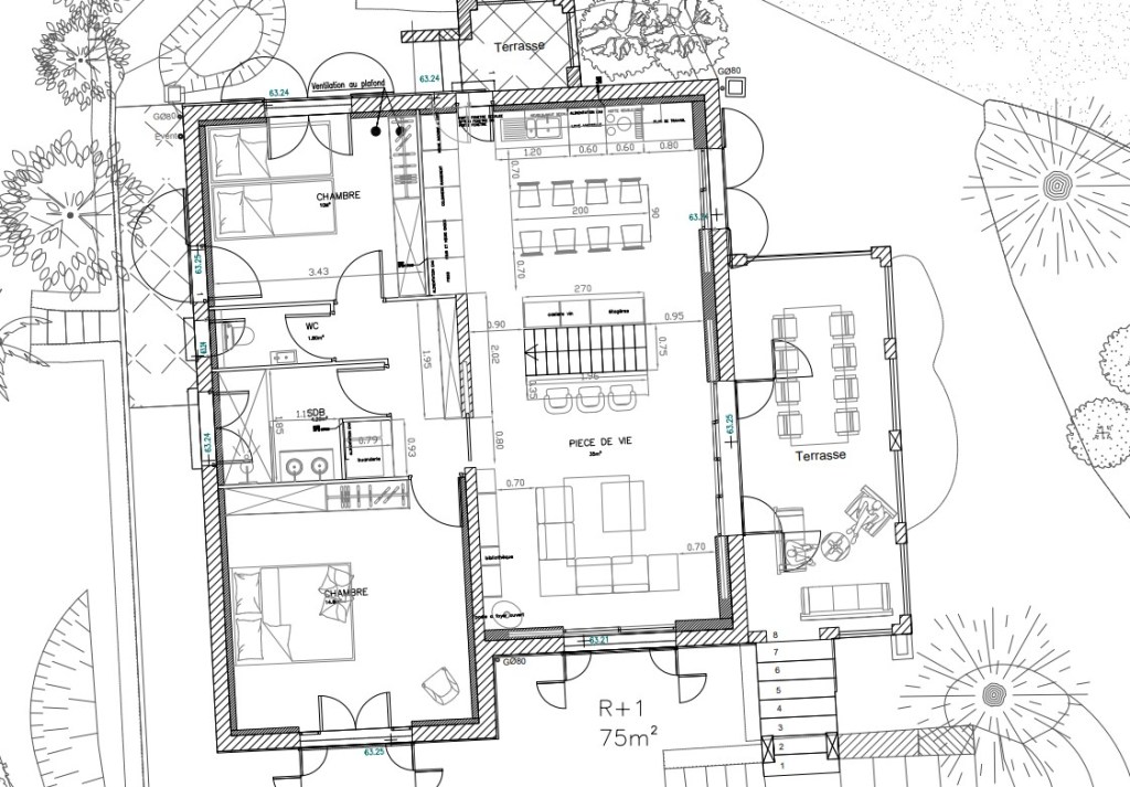
Villa Golf Rénovation
Une Villa Exceptionnelle avec vue sur le Golf de Mandelieu. Focus sur l’exposition et la vue éxterieure de la maison qui définie la distribution des espaces et leur orientation.
Localisation
Mandelieu
Projet
Rénovation
Date
Septembre 2024
